Innovative Energieanalysemodelle
Beratung und Erstellung von Energiemodellen für Ingenieurbüros.
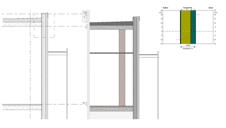
Anreicherung Bauphysikalischer Daten
Unsere automatische Unterteilung der erkannten Außen- und Innenwände, Fenster, Fassadenflächen, Fußböden, Decken und Dächer kann weiter verfeinert werden, um präzise bauteilphysikalische Daten zu integrieren. Dies ermöglicht eine detaillierte Klassifizierung und Optimierung der Berechnungsgrundlagen gemäß Ihrem Bauteilkatalog.


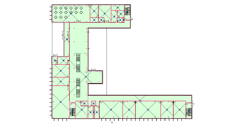
Präzise MEP-Raumplatzierung
Wir erstellen MEP-Räume basierend auf verknüpften Revit- oder IFC-Architekturmodellen, unabhängig von Deckensprüngen, variierenden Fußbodenniveaus oder Raum-in-Raum-Konstruktionen. Selbst IFC-Dateien ohne Raumbegrenzungen können wir zuverlässig verarbeiten.


Umwandlung in ein Energiemodell
Wir analysieren Architekturmodelle und konvertieren sie in präzise gbXML-Dateien, die Ihre Architektur nahezu 1:1 im Energiemodell abbilden. Diese gbXML-Dateien sind vollständig mit SolarComputer kompatibel und lassen sich nahtlos in den GBIS-Workflow integrieren.


AW01
Erhalten Sie Ihr Individuelles Angebot
Besuchen Sie uns auf LinkedIn für aktuelle Einblicke!
© 2024. Alle Rechte vorbehalten.
Kontakt
E-Mail: info@bim-x-consulting.de
BIM X Consulting


